Kompaktowe kotły na pelet
Kotły wodne ATMOS D10PX, D15PX, D20PX D25PX są przeznaczone do komfortowego ogrzewania domów rodzinnych, dworków i innych obiektów peletami.
Kotły D15PX i D20PX są dostarczane jako kompaktowe urządzenia z wbudowanym przenośnikiem, zasobnikiem pelet o pojemności 65/175/215 l oraz z palnikiem na pelety ATMOS A25.
Kompaktowe rozwiązanie techniczne tych kotłów umożliwia ich instalację w małych kotłowniach.
Zalety

5 klasa emisji spalin
Kotły ATMOS to niekwestionowany lider na rynku kotłów spełniających standardy 5 klasy emisji spalin. Dzięki udoskonaleniu technologii zgazowania drewna oraz zastosowaniu najwyższej jakości materiałów, stworzyliśmy kotły wydajne i przyjazne środowisku. Kotły z 5 klasą wg normy PN EN 303-5:2012 cechują się najniższym poziomem emisji spalin, spośród dostępnych na rynku kotłów, oraz doskonałą wydajnością.
- Kompaktowe wymiary przeznaczone do małych kotłowni
- Wszystko w jednym – kocioł i zbiornik na pelety, przenośnik i palnik
- Duża ceramiczna komora spalania
- Wentylator wyciągowy – usuwanie popiołu bez pyłu, kotłownia bez dymu
- Wymiennik rurowy z możliwością czyszczenia eksploatacyjnego
- Wysoka wydajność ponad 90 %
- Duży komfort ogrzewania – w pełni automatyczna praca kotła
- Wygodne usuwanie popiołu – proste czyszczenie jedynie z przodu
- Niewielkie rozmiary i niska masa
- Możliwość zainstalowania pneumatycznego transportu pelet w kotła
- Możliwość zainstalowania czyszczenia pneumatycznego do palnika
- Spalanie ekologiczne – kotły wg ČSN EN 303-5 5. klasy, EKODESIGN 2015/1189
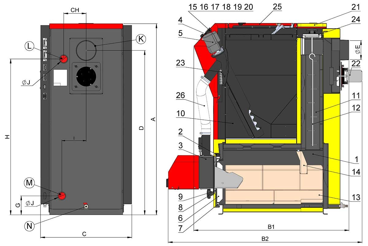
Budowa kotła
Są to kotły skonstruowane do elektronicznie sterowanego spalania peletu z automatycznym zapłonem paliwa. Palnik na pelety jest wbudowany w przedniej części kotła w drzwiczkach komory spalania. Ta komora wyłożonej kształtkami ceramicznymi w celu idealnego wysoce skutecznego dopalenia się płonienia i służy również jako przestrzeń na popiół. W tylnej części kotła znajduje się wymiennik rurowy osadzony zwalniaczami segmentowymi z funkcją oczyszczania wstępnego (roboczego) bez konieczności ich wyjmowania.
Korpus kotła to zespół zespawany z blach stalowych o grubości 3 – 5 mm. Od strony zewnętrznej został termoizolowany filcem mineralnym, włożonym pod blaszane osłony zewnętrznej obudowy kotła.
W górnej części znajduje się zasobnik paliwa, z którego pelety są transportowane do palnika za pomocą przenośnika śrubowego. Dawkowanie paliwa jest sterowane w pełni automatycznie. W przedniej części kotłów znajduje się panel zawierający: wyłącznik główny, wyłącznik palnika na pelety (L2) na wypadek czyszczenia, termostat roboczy (regulacyjny), termostat bezpieczeństwa, termometr i bezpiecznik 6,3 A.
Kotły DxxPX jest wyposażony w wentylator wyciągowy.
Kocioł nie jest wyposażony w pętlę chłodzącą zabezpieczającą kocioł przed przegrzaniem, ponieważ dzięki małej ilości paliwa w palniku nie występuje ryzyko przegrzania kotła w razie przerwy w dostawie energii elektrycznej.


Kotły D10PX, D15PX, D20PX oraz D25PX spełniają 5. klasę emisji, klasa efektywności energetycznej A+, wymagania na Ekodesign.
Schemat kotła

| 1. | Korpus kotła | 16. | Główny wyłącznik (czerwone) (kod: S0092) |
| 2. | Drzwiczki wyczystne (kod: S0459) | 17. | Termostat regulacyjny (kotłowy) (kod: S0021) |
| 3. | Palnik na pelety ATMOS A25 (kod: H0044) | 18. | Włącznik palnika (czarna) (kod: S0102) |
| 4. | Panel sterowania | 19. | Termostat bezpieczeństwa (kod: S0068) |
| 5. | Przenośnik ślimakowy | 20. | Bezpiecznik T6,3A/1500 – typ H |
| 6. | Wypełnienie drzwiczek – Sibral duży z otworem na palnik (kod: S0266) | 21. | Osłona pokrywki czyszczącej |
| 7. | Uszczelka drzwiczek 18 x 18 mm (kod: S0240) | 22. | Wentylator wyciągowy |
| 8. | Zamknięcie (kod: S1047) | 23. | Kondensator wentylatora wyciągowego – 1μF |
| 9. | Izolacja pod palnik (kod: S0164) | 24. | Pokrywa czyszczenia kanału tylnego |
| 10. | Zbiornik paliwa 175 l | 25. | Pokrywa zasobniku |
| 11. | Wymiennik rurowy | 26. | Wąż łączący palnika – długość 550 mm, Ø 65 mm |
| 12. | Zwalniacz z cięgnem czyszczącym i uchwytem | K | króciec czopucha |
| 13. | Żaroodporna kształtka – dno paleniska | L | wylot wody z kotła |
| 14. | Żaroodporna kształtka – Osłona | M | wlot wody do kotła |
| 15. | Termometr (kod: S0041) | N | nvasada do kurka napełniania |
Wymiary kotłów
Specyfikacja techniczna
Palnik

Palnik na pelet stosowany do kotłów D10PX, D15PX, D20PX i D25PX.
Polecany opał: wysokiej jakości pelet drzewny o średnicy od 6 do 8 mm, długości od 5 do 25 mm i wartości opałowej 16 – 19 MJ.kg-1.
Wyświetlacz: służy do wyświetlania aktualnego stanu palnika i do nastawiania jego funkcji.
Sterowanie palnikiem: elektroniczna regulacja AC07X, która steruje pracą podajnika zewnętrznego, dwóch spiral zapłonowych i wentylatorów według potrzeb kotła i systemu grzewczego. Elektronika jest zabezpieczona termostatem zabezpieczającym kocioł, termostatem zabezpieczającym na doprowadzeniu peletu do palnika, czujnikiem obrotów wentylatora i fotokomórką do śledzenia płomienia. Praca palnika jest sygnalizowana na wyświetlaczu regulacji elektronicznej.
Palnik do kotłów DxxPX posiada dodatkowo moduł rozszerzający AC07X-C – (R5, R6) do sterowania pneumatycznego czyszczenia palnika lub innego wyposażenia.
Rozpalanie opału: automatyczne z pomocą dwóch elektrycznych spiral zapłonowych.
Podstawowe funkcje palinka:
- Wyjścia rezerwowe R i R2 do sterowania wentylatora wyciągowego kotła i pompy w układzie kotła (podłączenie fabrycznie)
- Możliwość wykorzystania dwóch wyjść rezerwowych R5 i R6 do różnych zastosowań
- Możliwość podłączenia czterech różnych czujników TS, TV, TK i TSV
- TK – czujnik temperatury kotła (podłączenie fabrycznie)
- TSV – czujnik temperatury spalin (podłączenie fabrycznie)
- TS – czujnik dolnej temperatury na zbiorniku
- TV – czujnik górnej temperatury na zbiorniku
- sterowanie wentylatorem kotła z palnika za pomocą wyjścia rezerwowego (R) (podłączenie fabrycznie)
- sterowanie pompą kotła z palnika za pomocą wyjścia rezerwowego (R2) (podłączenie fabrycznie)
- sterowanie palnikiem według dwóch temperatur na zbiorniku wyrównawczym
Dawkowanie paliwa: do kotłów DxxPX jest przeznaczony specjalny przenośnik DRA25 wbudowany bezpośrednio w kotle. Przenośnik jest sterowany za pomocą elektronicznej regulacji palnika i dawkuje paliwo ze zbiornika do palnika.
Panel kotła GS
Panel kotła C, AC
Instalacja
Wymaganą metodą ochrony jest podłączenie kotła w zestawieniu z układem Laddomat 22 lub zaworem termoregulacyjnym, który pozwala na utworzenie niezależnego obwodu kotłowego oraz obwodu grzewczego (obwodu pierwotnego i wtórnego) w celu zapewnienia temperatury wody na powrocie do kotła na poziomie minimum 65 °C. Im wyższa temperatura wody na powrocie do kotła, tym mniej kondensacji smoły i kwasów, które uszkadzają korpus kotła. Temperatura wody na wyjściu z kotła musi się stale utrzymywać w przedziale 80 – 90 °C. Kolejny wariant to podłączenie kotła za pomocą trójdrogowego zaworu mieszającego i słownika sterowanego z regulacji (np. ATMOS ACD01, ACD03, ACD04) do utrzymania temperatury minimalnej wody wracającej do kotła (65 – 75 °C).
Kotłów D10PX, D15PX, D20PX i D25PX zalecamy podłączenie zawsze w układzie ze zbiornikiem buforowym o pojemności od 500 do 1000 l. W przypadku połączenia kotła ze zbiornikiem wyrównawczym (akumulacyjnym) kocioł jest najlepiej sterowany według dwóch czujników TS i TV znajdujących się na zbiorniku. W celu sterowania palnikiem za pomocą dwóch temperatur w zbiorniku wyrównawczym (akumulacyjnym) należy zainstalować w zbiorniku dwa czujniki KTF 20 (czujniki TV i TS).
Prawidłowe podłączenie kotła D15PX, D20PX ze zbiornikiem akumulacyjnym i sterowaniem palnika za pomocą czujników TS oraz TV oraz sterowanie pompy kotła według temperatury kotła (czujnika TK) z palnika A25
Prawidłowe podłączenie kotła DxxPX ze zbiornikiem akumulacyjnym i regulacją ACD01
Laddomat 22 i zawór termoregulacyjny
Podłączenie kotła DxxPX ze zbiornikiem wyrównawczym
Eksploatacja
Klient otrzymuje kotły z podstawową regulacją mocy kotła, która spełnia wymagania dotyczące wygodnego ogrzewania i bezpieczeństwa. Regulacja zapewnia wymaganą temperaturę wody wyjściowej (80 – 90 °C). Kotły są wyposażone w złącze do podłączenia pompy w układzie kotła i w funkcję do jego sterowania bezpośrednio z regulacji palnika ATMOS A25.
W kotłach DxxPX są fabrycznie zainstalowane czujniki temperatury kotła TK i temperatury spalin TSV. Czujnik TK jest wsunięty w osadniku kotła, czujnik spalin TSV wbudowany w kanał dymowy kotła, oba są wspólnie podłączone bezpośrednio do złącza palnika. Palnik na pelety ATMOS A25 bezpośrednio steruje wentylatorem wyciągowym kotła (wyjściem rezerwowym R) i pompą w układzie kotła (wyjściem rezerwowym R2). Wyjście R2 jest fabrycznie połączone szeregowo z termostatem pompy w układzie kotła TČ70 °C.
W przypadku zalecanego podłączenia kotła ze zbiornikiem wyrównawczym (akumulacyjnym), kocioł jest najlepiej sterowany według dwóch czujników TS i TV umieszczonych na zbiorniku. Załączanie pomp w układzie systemowym nie jest w tym przypadku zależne od temperatury kotła, dlatego rozwiązujemy je na podstawie potencjalnych potrzeb systemu.
Czyszczenie kotła
Czyszczenie palnika kotła należy przeprowadzać regularnie i dokładnie raz na 5 do 14 dni, w zależności od jakości peletów i ustawień mocy.
Kotły są przeznaczone do spalania wysokiej jakości białych peletów z miękkiego drewna bez kory o średnicy 6 – 8 mm, o długości 10 – 40 mm i wartości opałowej 15 – 18 MJ.kg-1. Kocioł nie jest przeznaczony do spalania peletu, który spieka się w komorze spalania palnika. W takim przypadku należy czyścić komorę spalania palnika raz dziennie lub można wyposażyć palnik ATMOS A25 w czyszczenie pneumatyczne komory. Czyszczenie pneumatyczne docenią przede wszystkim ci, którzy spalają pelety gorszej jakości tworzące spieki.
Wygodne usuwanie popiołu – proste czyszczenie jedynie z przodu. Popiół z całej komory usuniemy za pomocą półkulistej popielniczki (akcesoria kotła). Wsuniemy popielniczkę do kotła na styk, dosuwając popielniczkę do tylnej ściany, zgarniemy popiół do popielniczki i wyciągniemy ją. Nigdy nie pozostawiaj popielniczki w kotle!
Kotły DxxPX są wyposażone w funkcje czyszczenia eksploatacyjnego wymiennika rurowego. W celu czyszczenia roboczego wymiennika rurowego i zwalniaczy użyjemy uchwytu na pokrywie czyszczącej w tylnej części kotła ukrytej pod osłoną. Wyciągając wielokrotnie i puszczając uchwyt, pyłki zostaną wytrząśnięte ze zwalniaczy a ściany dna sitowego zostaną porysowane.
Ceny i dostawa
Chcesz dowiedzieć się więcej na temat naszych kotłów?
Wyślij wiadomość, aby zamówić darmową konsultację z naszym specjalistą!








